Не упусти свой шанс! Последние акции от застройщиков  ▼

Продается 1-комнатная квартира, Зацепа ул., 29

42 432 000 Р

Зацепа ул.29

Дата публикации: 13 сентября 2025

Дата обновления: 11 декабря 2025

Телефон: 
Показать телефон

+7 (495) 104-56-15

Агентство:  ООО Метриум

От застройщика: 0 квартир в продаже

Этаж: 3 / 22

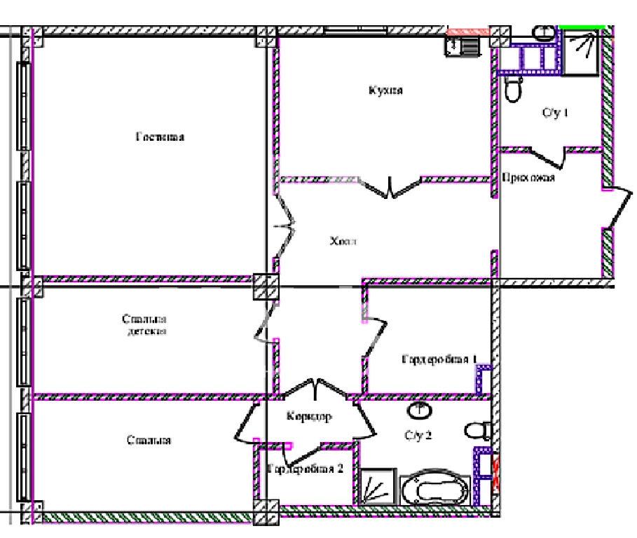
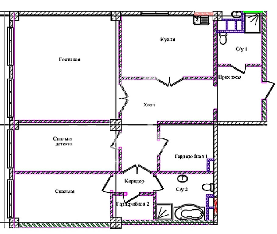
Общая: 132,6 м2

Жилая: не указано

Кухня: не указано

Комнаты: не указано

Балкон/лоджия: не указано

Лифт: не указано

Окна: не указано

Санузел: не указано

Мусоропровод: не указано

Состояние квартиры: без отделки

Тип дома: монолитно-кирпичный

Год постройки: 2021

Территория: огороженная

Парковка: не указано

Статус сделки: продажа

Сделка: прямая продажа

Собственность: не указано

Основание права собственности: не указано

Описание

ID 21526 В Жилом комплексе "Резиденция Замоскворечье" предлагаются апартаменты со свободной планировкой, правильной геометрией, панорамными окнами и высокими потолками. Для автомобилей предусмотрен двухуровневый паркинг на подземных этажах с двумя независимыми въездами. Входные группы отделаны мрамором и ценными породами дерева, функционирует круглосуточная консьерж-служба. Собственная инфраструктура апарт-комплекса включает детский центр, фитнес-клуб с 25-метровым бассейном, зону отдыха на кровле, кафе.
Развитый район богат школами, гимназиями, лицеями, детскими садами. Есть поликлиники и многопрофильные медицинские центры, аптеки. Рядом с домом имеются магазины, кафе и рестораны, салоны красоты, парки, множество памятников архитектуры, музеев.
Жилой комплекс "Резиденции Замоскворечье" располагается во второй линии домов, что обеспечивает тишину и спокойствие в самом центре мегаполиса.

Квартира на карте

ПанорамыКарта
Спецпредложения
Добавить объявление